搜房源
发布信息
服务热线:15601084512

客服微信>>

手机站 北京 天津 河北 辽宁 山东 其他站 发布信息

湖北厂库房网> 鄂州厂房出售>厂房出售

鄂州单层,多层厂房及土地出售

编号:128395

区域:

鄂州-

类别:

厂房出售

占地面积:

95906平米

价格:

面议

建筑面积:

车间面积:

办公面积:

柱网跨度:

层高:

现配电容量:

分割面积:

地址:

鄂州经济开发区

浏览:

霍经理

详细信息

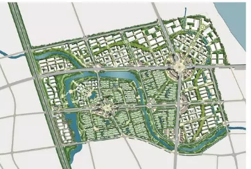
v中国宏泰发展长江智汇港地处鄂州经济开‌‌发区,临近吴楚大道东,旭光大道北,武汉新港三江港经济区。有武鄂高速、武黄高速、城际铁路等快速交通枢纽。从项目地至武汉主城区30公里,离规划的顺丰核心枢纽机场35公里。规划的顺丰核心枢纽机场及物流产业园均位于鄂州市鄂城区东部,燕矶镇南部。
交通优势:
一.吴楚大道,武汉至鄂州城市主干道,双向八车道,不收费。
二.武鄂高速、武黄高速,20 至30分钟即可到达武汉东湖高新区(武汉自贸区核心区)。
三.城际铁路,武汉站至鄂州站最快22分钟,最慢40分钟
服务保障:
园区设立了后勤服务中心.提供统一职工食堂,有多样化商业配套及公寓式员工宿舍

图片展示

品牌企业

相关站点

厂房出租

工厂出租

厂库房出租

库房出租

仓库出租

冷库出租

保鲜库出租

恒温库出租

高台库出租

平库出租

综合楼出租

土地出租

场地出租

建设用地出租

工业用地出租

关于本站- 广告投放- 联系我们- 版权隐私- 免责申明- 意见反馈 返回顶部

版权所有:北京万汇优企科技有限公司 未经授权禁止转载、摘编、复制或建立镜像,如有违反,追究法律责任.

电话:010-56877550

京ICP备14014070号-6