搜房源
发布信息
服务热线:15601084512

客服微信>>

手机站 北京 天津 河北 辽宁 山东 其他站 发布信息

湖北厂库房网> 孝感产业园出售>孝南产业园出售

汉孝产业新城产业港招租(孝感)

编号:135902

区域:

孝感- 孝南

类别:

产业园出售

占地面积:

21008平米

价格:

面议

房屋面积:

层高:

9米

分割面积:

2520㎡ 3150㎡ 3150㎡ 3150㎡

地址:

孝汉大道与幸福大街交叉口汉孝产业新城

浏览:

刘建

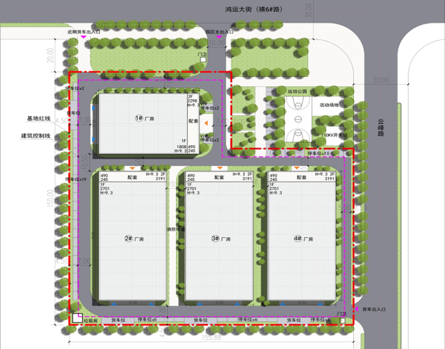
详细信息


智能制造装备产业港位于汉孝产业新城核心位置,汉孝产业新城位处孝感唯一的市辖区——孝南区,在武汉都市圈西北发展主轴上,30分钟直抵武汉主城区,20分钟到达孝感市区,15分钟到达武汉天河国际机场,独特的地理位置,承接武汉资源外溢和人口导入的重要区域,邻孝感临空经济区,位于“汉孝一体化”的关键节点,未来将成为“孝感向东 武汉向西” 发展的重要支点。是武汉资源辐射的第一圈层、国家新型城镇化综合试点地区,发展动力强劲。


图片展示

品牌企业

相关站点

孝南厂房出租

孝南工厂出租

孝南厂库房出租

孝南库房出租

孝南仓库出租

孝南冷库出租

孝南保鲜库出租

孝南恒温库出租

孝南高台库出租

孝南平库出租

孝南综合楼出租

孝南土地出租

孝南场地出租

孝南建设用地出租

孝南工业用地出租

关于本站- 广告投放- 联系我们- 版权隐私- 免责申明- 意见反馈 返回顶部

版权所有:北京万汇优企科技有限公司 未经授权禁止转载、摘编、复制或建立镜像,如有违反,追究法律责任.

电话:010-56877550

京ICP备14014070号-6